Sommaire
Sommaire
L’ensemble est composé de :

Plusieurs unités extérieures génératrices de puissance :
Pompes à chaleur HRC70, de différentes puissances allant de 17 à 80kW cascadable jusqu’à 1,2MW, monobloc, haute température 70°C, avec fluide R290 sans HFC, GWP de 3 avec un impact très faible sur l’environnement.
Chaque pompe à chaleur est alimentée hydrauliquement par un collecteur et un bus de communication (3 fils blindés).
Les pompes à chaleur de type air/eau prélèvent les calories dans l’air extérieur pour les valoriser, via un circuit thermodynamique et lestransfèrent aux circuits d’eau chaude sanitaire ou de chauffage.
Un pilote hydraulique qui contrôle l’installation :
le pilote ZéPAC, composé d’un module de distribution hydraulique (soit uni-module, soit bi-module) équipé de circulateur(s), d’une régulation avec affichage tactile, et d’un ou plusieurs préparateurs eau chaude sanitaire si la configuration s’y prête.
Le pilote hydraulique ZéPAC assure la régulation et la distribution hydraulique de l’installation. Il est pré-équipé et destiné aux installations d’eau chaude sanitaire, de chauffage et de rafraîchissement.

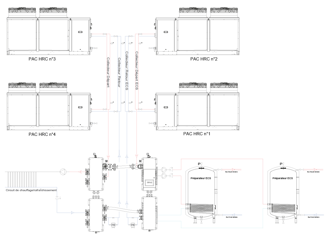
Exemple d'une solution chauffage + Eau chaude sanitaire (Bimodule) :
Descriptif : 4 générateurs mononbloc haute température HRC70 80 KW, couplé à un pilote hydraulique Zépac bi-module ZépAC qui assure simultanément le chauffage et l'eau chaude sanitaire.

Principe de fonctionnement
La régulation du pilote ZéPAC prévoit un enclenchement étagé des compresseurs afin d’être au plus proche de la courbe de chauffe du bâtiment.
La régulation prévoit également un rattrapage de puissance en cas de comportement anormal du bâtiment (augmentation de la température intérieure de confort, ouverture anormale des menuiseries...).
Dans l’exemple suivant, les pertes du bâtiment, incluant une surpuissance de 20%, s’élèvent à 250kW.
Cinq pompes à chaleur HRC70 de 80kW sont dimensionnées pour couvrir la totalité des besoins de chauffage (surpuissance inclue) à la température de référence de la zone (-7°C sur cet exemple). Avec le fonctionnement étagé, seulement 3 pompes à chaleur HRC70 fonctionneront jusqu’à 0°C. Les 2 autres s’enclencheront uniquement pour les températures extérieures négatives.

Les pilotes hydrauliques ZéPAC Uni-module et Bi-module sont respectivement équipés d’un et de deux modules de distribution. Ces derniers doivent être systématiquement couplés à deux collecteurs qui sont quant à eux reliés aux pompes à chaleur.
Ils assurent la distribution de l’eau dans les pompes à chaleur, dans les serpentins des préparateurs eau chaude sanitaire (ECS) ainsi que dans les circuits de chauffage/rafraîchissement.

Besoin d'aide avec votre Pompe à chaleur ou votre chauffe-eau thermodynamique ?
Nos experts du SAV vous rappellent gratuitement !
Choisissez un créneau de 30 minutes et bénéficiez d’un accompagnement personnalisé pour diagnostiquer ou résoudre votre problème.


Ils permettent :
- Le découplage des débits de la pompe à chaleur et des circuits primaires eau chaude sanitaire (ECS), chauffage et rafraîchissement ;
- Le dégazage de l’air ;
- La décantation des boues ;
- La gestion complète de l’installation de chauffage sanitaire ;
- Le chauffage et rafraîchissement.
HRC70 ZéPAC, la solution intuis en pompe à chaleur collective, eau chaude sanitaire et chauffage.
Nos références chantiers
Zépac70 : Solution Pompe à chaleur double service collective Eau chaude + chauffage
ZéPAC : Solution Pompe à chaleur réversible sur boucle d'eau
Zépac70 : Solution Pompe à chaleur double service collective Eau chaude sanitaire + chauffage
Zépac70 : Solution Pompe à chaleur double service collective Eau chaude Sanitaire + chauffage
Zépac70 : Solution Pompe à chaleur double service collective Eau chaude + chauffage
